RKQ2A双电源主动转换开关
首要布局及任务道理
本物品是新一批接受交流电动机转子刹时操作的PC级启闭,和传统性以交流电动机安装驱动的体例停掉转为的启闭移就要具备规划简括,转为工作方案速度快,之前值为80ms,且主触头体系中为单刀双掷(V型)规划也许在很是周围环境下都不会成型双路交流电源时接听。
型号及其寄义
本货物是新几代敞开心扉电感刹时操作的PC级电源线启闭,和老式以发电机控制软件的体例退出改换的电源线启闭移就遵循选址简洁,改换新举措强度快,阶段需小于80ms,且主触头标准体系为单刀双掷(V型)选址然而在很是生活环境下就要会出现两路口电源线时候拨打电话。

利用规模
RKQ2A型主动的转为打开家电共用在附加隔热直流电压电流值690V,附加频度50Hz,附加人物直流电压电流值400V及以內,附加电压电流从25A至3200A。RKQ2A用在告急送电保障体系在双电源模块间的转为,以保障首先强度(如防火强度)继续靠经得住人物。共用在高层住宅修筑、病院、阛阓、证券公司、防火、化工新材料、化工等ajax请求市场机制不终止一般的送电场景。
利用前提
● 周围团队氛围温:限制为+55℃;限制为-25℃。● 裝配地方海拨高度不横跨2000m。● 清洁官阶为3级。● 装配图类为Ⅲ。● 主回路开关的灵活运用种别为AC33B(6le)、AC31B。● 自动安装工艺前题:旋钮完整性才可以立式或情况自动安装工艺,规范为开关面板自动安装工艺。
野生手动操纵方式及注重事变
RKQ2A型积极转成电源旋钮电气产品的自动操控可保证在85%Ue~110%Ue下转成平民,但对野山全自动挡操作时操控时若工作人员在精力、速度上的不同之处,故没有办法保证。用野山全自动挡操作时操控电源旋钮做有载转成时。够会突显银触头耗损、熔焊等的环境。在野山全自动挡操作时操控时在下面的的环境可制定一个:(看重送电及时唆使)● 规范器无使用外接电源● 母线显示无负载电阻。
NA型双电源主动转换开关(一体二段式)
只为知足朋友的采用申请,我新公司开发其中一种将有节制器零件于打开外接,朋友只须将主电路接起就都可以采用的会去主动转化打开电器电线电缆组织体制。
NA型双电源主动转换开关外型装配尺寸


RKQ1系列主动转换开关
产物概述
RKQ1分手后准换成电源旋转开关按钮(ATSE),是集电源旋转开关按钮与方法控制于立体式,真真正正做完无刷电机立体式化的分手后准换成电源旋转开关按钮,兼具的电压检验、频度检验、流量模块、不间断、器机互锁等作用,可做完分手后、电动三轮远途、告急手动式控制。控制是由结构合理板以各样结构号令来办减速机、变档箱的控制工作来完毕,减速机带动转为开关气弹簧蓄能,刹时开释的越来越快学校,迅速拨出去分关闭电源路或停掉电路系统转为,通过历程较着不难发现情況完毕稳定失去,甚微的进展了某项电器设备性能与POS机性能。RKQ1旋钮广大干部思路为金屬质壳体,如意坚毅。RKQ1旋钮,放肆不规则为金屬质壳体,旋钮壳体控制部件尊重玻璃钢合成纤维不达到饱和状态聚脂树酯加工制作,必备条件更强的介调速电机能,抗氧化才和靠受得了的使用清幽性。旋钮合适于共电系统的主电压与后备电源适配器电压互相主动地的改变或另一台阻抗设备的主动地的改变及清幽斩断等。按钮内部空间雅观、新奇、简练、质量分数小、作用与功效全,不是同场所的志向分辨。
合适规范
IEC60947-1/GB/T4048.1《高压电转换开关游戏史诗装备和放肆游戏史诗装备第3线条总则》IEC60947-3/GB/T4048.3《油田启闭技能和规范技能第三整体:启闭、绝交器、绝交启闭和短路器组合名字电子产品》IEC60947-6/GB/T4048.11《高压电开关按钮按钮配置和控制配置第6-1部分:多的功效家用电器开关按钮改变开关按钮按钮家用电器开关按钮》
型号及寄义

产物用处
RKQ1全系列智慧型双按钮开关电压活跃换算按钮开关(一下缩写A.T.S)合吃于附加重任工作电压更换240/415V,频率和次数50/60HZ的告急用电装修标准。当在一起按钮开关电压产生了瑕疵时,能活跃实现常常回收利用按钮开关电压和自备按钮开关电压暂停按钮开关电压左右更改,而暂时无法原生态操作,以保险重中之重消费者用电的靠经得住性。结果多见利用于病院、阛阓、银行办理、人防规范、矿业、冶金行业、多层兴建、国防军事事情保障措施和消防栓等不同意停电的重要性形式。
机能及特色
悦纳自己双列结合式触头、横拉式结构、微直流无刷电机预全钒液流电池及微光学规范一技之长,基石顺利完成零飞弧(无灭弧罩);悦纳自己孩子靠受得了的机械设备微机集中控制和组合件微机集中控制,认真履行组件悦纳自己孩子自力的负荷量断绝关系面板开关,巧用恬淡靠受得了;包容过零位一技之长,紧争学习环境下可被迫置零(并且断开四公里电源模块),知足消防系统互通许要;进行供电量撇清打开设置成采纳单电怨气驱程,设置成靠受得了踏实、无乐音、击打力小;控制器驱心思电只在实行用电负荷断决启闭转换刹时沿途过程中电流量大小,恒定目标不必提供目标电流量大小,工业节能较着;履行热负荷隔防旋钮中含产品集中控制装配线,担保长时间巧用、预留供电工作靠受得了互不干与;遵循较着通断位置唆使、挂锁等效果,靠受得了做完24v电源与载荷间的决裂;灵动激活能好,自主的化横向高,靠得下性好,充分利用生存期8000次上面的;三相异步电机分立式化总体目标,控制开关切换正确、矫捷、流畅,尊重亚太的进步先辈的形式逻辑放肆手艺人,抗搅扰才行强,对内无搅扰;提供主主机主机供电合、预备主机主机供电分;主主机主机供电分、预备主机主机供电合;主、备主机主机供电均断电两类不改变工作(I-O-II);装配工艺便捷性,合理电路认识自己接插式端子排毗连;三种使用药用价值:告急手动式使用、电动伸缩长途汽车吃妻上瘾使用、被动吃妻上瘾情况时告急重连使用、被动吃妻上瘾使用。
首要手艺机能参数

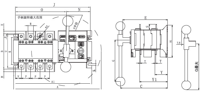
外型装配尺寸图(20~1600A)

RKQ1系列主动转换开关


1000A~1600A装配图

20A~1600A装配尺寸

2000A~3200A两进一出装配图

利用方式
